IV78 – GREEN LINE
Ideální poměr cena / užitná hodnota
Dřevina smrk, borovice, modřín, dub, meranti
3 popř. 4 vrstvý lepený hranol fixní nebo nastavovaný
Povrchová úprava – 3 nebo 4 systémová od firmy GORI – máčení v impregnaci, máčení v základní barvě, nástřik plniče, vrchní nástřik
Možnost výběru RAL nebo Lazura
Materiály nátěru ekologické, vodou ředitelné
Výrobek lze doplnit o příčky popřípadě rustikální prvky
Na přání zákazníka lze zvyšovat požadovanou bezpečnost
Izolační 2 sklo nebo 3 sklo
Možné změny typu zasklení (bezpečnostní skla, protihluková skla, ornamentní skla atd.)
Výrobek splňuje veškeré normativní požadavky
- Popis
- Další informace
Popis
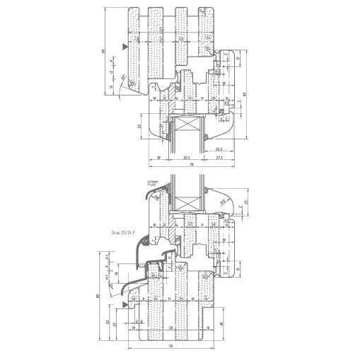
Rám: Dřevěná EURO okno v profilaci IV78
Křídlo: Dřevěná EURO okno v profilaci IV78
Kování: celoobvodové stříbrné kování s mikroventilací
Výplň: 4-22-4, Ug = 1.2, Uw = 1.2 s teplým rámečkem
Kotvení: Na pásky
Odvodnění: Dopředu pod okapnici
Okapnice: Světlý/tmavý bronz, stříbrná, bílá popř. dle vzorníku RAL
Distanční rámeček: TGI
Těsnění: Dorazové středové
Barva těsnění: Bílá, hnědá, béžová, šedá, černá
Další informace
| Tepelná izolace: | Uf = 0, 92 W/m2K Uw=1, 1 W/m2K (Ug=1.1W/m2K) Uw=0, 93 W/m2K (Ug=0.8W/m2K) |
|---|---|
| Bezpečnost: | až do RC2 |
| Zvuková izolace: | Rw= 32 dB (sklo 6-18-4) Rw= 32 dB (sklo 4-10-4-10-4) |
| Rozměry: | Stavební hloubka rámu: 78 mm Pohledová šířka rám/křídlo: 120 mm |
| Kování: | bezpečnostní body pojistka proti chybné manipulaci |






















