CS 77, CS 77-HI

Tepelně izolovaný tříkomorový profil pro okna a dveře
Optimální kombinace bezpečnosti a pohodlí
Řešení těsnění a způsob odvodnění zajišťují vynikající vodotěsnost a vzduchotěsnost
Vhodný pro řešení exteriérových prvků
Možnost lakování odlišné barvy v interiéru a exteriéru – BICOLOR
Možnost lakování v imitaci dřevodekoru
HI – vylepšená varianta snižující součinitele prostupu tepla Uf až na hodnotu 1,6 W/m2K

  • Popis
  • Další informace

Popis

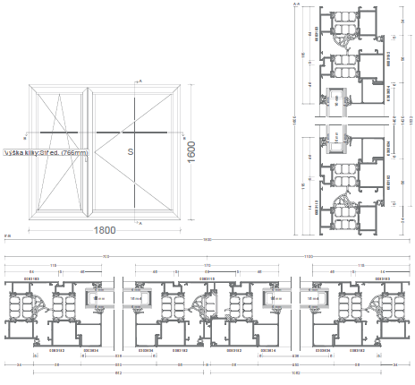
Prvek: zasklení 4-16-4 = 24mm
okno: 1800 x 1600mm, Uw 1,6 / CS77
dveře: 1050 x 2100mm, Uw 1,8 / CS77
TGI rámeček: ve standardu v černé barvě
Maximální rozměry okno OS: šířka: 2600mm výška: 2700mm
Minimální rozměry okno OS: šířka: 700mm výška: 500mm
Dveře – varianty ukončení v podlaze: bez prahu s kartáčem, přejezdový s kartáčem, standardní práh, automatický dveřní práh „padací“
Okna – odvodnění: skryté nebo viditelné
Varianta Hi: vylepšená varianta Hi snižující součinitele prostupu tepla Uf, až na hodnotu 1,6W/m2K

Další informace

Tepelná izolace:

Uf = 1, 8 W/m2K (v závislosti na použité kombinaci rámu a křídla)

Bezpečnost:

WK2 dveře (dle ENV 1627 – 1630)

Zvuková izolace:

Rw= 44 dB /-2, -5/ (v závislosti na typu skla)

Rozměry:

Stavební hloubka: rám – 68mm / křídlo – 77mm Pohledová šířka okna: rám – 51mm / křídlo – 33mm Pohledová šířka dveří: rám – 67mm / křídlo – 77mm Zasklení: až 52mm

Kování:

Okna – SobincoChrono Dveře – SobincoChrono, Fapim, WBH