CP 155/CP 155-LS
Tepelně izolovaný posuvný systém s maximální váhou křídla 400kg a výškou křídla až 3m
V provedení s motorickým posuvem
Vysoká tepelná izolace a pohodlné ovládání
Možnost nízkého prahu pro perfektní návaznost mezi vnitřním a venkovním prostorem
Vhodný pro řešení exteriérových posuvných stěn
Možnost až 3 kolejnic
Možnost lakování odlišné barvy v interiéru a exteriéru
Možnost lakování v imitaci dřevodekoru
- Popis
- Další informace
Popis
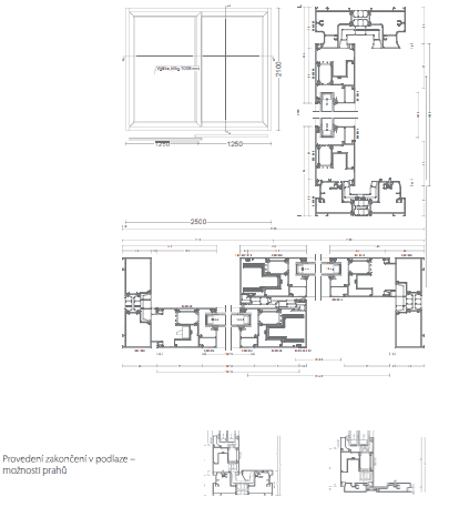
- Prvek: zasklení 4-16-4 = 24mm
dveře: 1050 x 2100mm, Uw 1,8
TGI rámeček: ve standardu v černé barvě
Maximální rozměry: šířka: 2700mm výška: 3000mm
Minimální rozměry: šířka: 750mm výška: 500mm, výška 1800 mm – LS
Odvodnění: spodní nebo viditelné
Označení LS: zdvižné posuvné – lepší těsnost křídla, větší bezpečnost uzavření
Další informace
| Tepelná izolace: | Uf = 2, 155 W/m2K (v závislosti na použité kombinaci rámu a křídla) |
|---|---|
| Bezpečnost: | WK2 dveře (dle ENV 1627 – 1630) |
| Rozměry: | Stavební hloubka rámu: 155mm (1 kolejnice) / 242mm (3 kolejnice) Viditelná šírka: rám – 60mm / křídlo – 102mm Zasklení: 13 – 52mm |
| Kování: | Siegenia / Sobinco možnost uzamykání na venkovní straně standardně osazeno madlo |






















